ARB - Architects Registration Board Royal Institute of British Architects
Colony Architects Logo

A collaborative of designers, planners, surveyors and construction professionals

About Us Services we provide On the Drawing Board What architects do From Our Archives Gallery of Work Completed Tools of the Trade Useful stuff to know Always Leave Room for Dreaming Some fun ideas we have dreamt up Sustainable Agenda Ethical architecture The Colony Family Who we are and what we do Further reading The Colony PDF book Frequently Asked Questions And Our Answers
Contact us or call:
Stu 07990 515372
Ed 07779 255328

Reading Office
The Wine Store
Brewery Court
Theale
Berkshire, RG7 5AJ

Guildford Office
Intermezzo
Woking Road
Guildford
Surrey, GU1 1RU

© Colony Architects 2019

« list of all projects

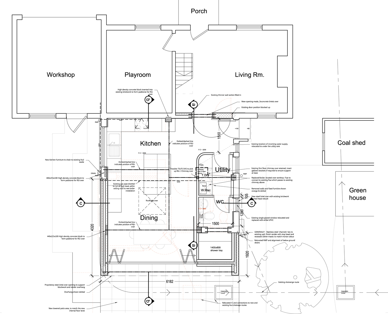
Modern House Extension

  • White box design to contrast with house
  • Extension of living spaces
  • Improve connection with garden
  • Full architectural services
  • Design sketches to contract completion
  • Approx budget £50k